Homestead 2 | 7 Model

Our Flagship Prefab ADU Model - H2|7

Affordability meets Quality

The H2|7 is a 1 bedroom 1 bath Accessory Dwelling Unit (ADU) that delivers exceptional energy-saving performance in Colorado. 

This 700 square foot prefab ADU is a perfect backyard structure and is built with high-quality, nontoxic materials. This ADU package prioritizes health and sustainability but also offers a refined, modern look. 

While we designed and engineered this prefab ADU model with the desert and mountain climates of Colorado in mind, we also ship to Utah, Idaho, Arizona, Washington and New Mexico, and installation only takes 1 day!

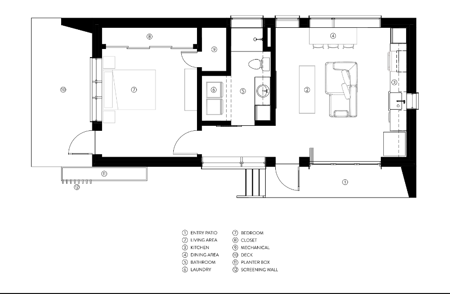
Floorplan
1bed with 1 bath

Size
692 SF Living Space

H2|7 starts at $323k

  • Fully insulated, Mold-resistant design, certifiable Passive House system, Off-grid capable, Wood-based materials

*Available Now in Colorado, Utah, New Mexico, Arizona, Washington, and Idaho

*prices vary based on location and site specific building costs

Schedule a call

Functional Space

Creative storage options for a full-time living space.

Wood-Based

High quality siding, interior finishes.

90% less Energy-use

When compared to minimum requirements

First-level floor plan

This space-efficient 1 bed/1 bath ADU design features a combined mechanical room & bathroom, with a private entrance to the bedroom suite.

Schedule a call

H2|7 Prefab ADU Gallery

Schedule a call

Frequently Asked Questions

How long does it take to build a Prefab ADU?

Our Production team builds each of our ADUs in the factory in one week, with quality checks at every assembly stage. From Permitting to Installation, traditional construction methods can take 1 year+ to achieve occupancy - but with our Prefab ADU Process - you can achieve Occupancy within 3-6 months.

Learn more

What is Non-Toxic Construction?

Traditional builders use spray foam insulation, along with various other toxic building materials that can release harmful chemicals, like VOC’s, into the air you breathe every day. At Ayton house®, we choose non-toxic, wood-based materials and recycled cellulose insulation for safer, cleaner living. Build smarter, breathe healthier.

Non-Toxic construction is foundational to Ayton house®. After his own childhood battle with mold-related sickness, our Founder, Bill McDonald set out to find a healthier way to build homes. Watch our Origin Story to learn more.

How do we create Efficiency In Design?

Traditionally, the design phase of a project is often rushed to meet deadlines. Speed is prioritized over accuracy, and communication between the various parties involved can often be sparce. There is little incentive to get everything right ahead of construction, especially when the customer can be billed for any rework that has to be done.

Ayton house® is different. We build your home twice—first as a detailed digital model, then as the physical structure. Using advanced computer-aided design, we create a one-to-one 3D model of your home. Our in-house design team meticulously reviews this model, along with the architectural and engineering plans, through multiple rounds of refinement. All before the first board is even cut. This commitment to perfection upfront eliminates the costly fixes and change-orders that plague the residential construction industry. We put in the work to do it right the first time, so you don’t have to pay to have it done a second time. In fact, we guarantee no change-orders.

Can I use an ADU for rental income?

YES! ADUs are a great way to generate rental income—whether it's long-term tenants, vacation rentals, or affordable housing. 

With Ayton house, you get fast installation, meaning you can start earning sooner! Our H2-7 Base model offers airtight construction, net zero energy use, and no energy bills within a year! Plus, it's off-grid capable for those doomsday preppers. 

Looking for a more budget-friendly option? Check out our H2-7 LITE model, with the ability to customize your finishes to help you control costs. 

Do I need a permit to Build an ADU?

In short, yes. Building an ADU requires permits from your local city or county covering zoning, building codes, and utilities.

The process starts by getting familiar with the ADU requirements in your area. Once you’re signed on, Ayton house will work with trusted builders, architects, and engineers to streamline your experience. As soon as your permit is in place, we begin construction. Our ADUs have predesigned architectural plans ready to go. The best part is, they’re in stock and they can be installed in just one day.